- En vente
Surface terrain
Surface de plancher
- La Londe-les-Maures
- (83250)
- - Valcros
Terrain à bâtir Domaine de Valcros à La Londe-Les-Maures
- En vente
🏡 Terrain à vendre en vente interactive – La Londe-les-Maures (Valcros)
Terrain constructible avec permis purgé – 2 070 m² – Vue dégagée
Situé à La Londe-les-Maures, dans le très recherché domaine privé de Valcros, découvrez ce terrain à bâtir d’environ 2 070 m², au calme absolu, bénéficiant d’une exposition Est et d’un environnement naturel privilégié.
À proximité immédiate du golf, des plages et du massif des Maures, ce terrain constitue une opportunité rare pour un projet de résidence principale ou secondaire sur la Côte d’Azur.
🌿 Terrain avec permis de construire purgé
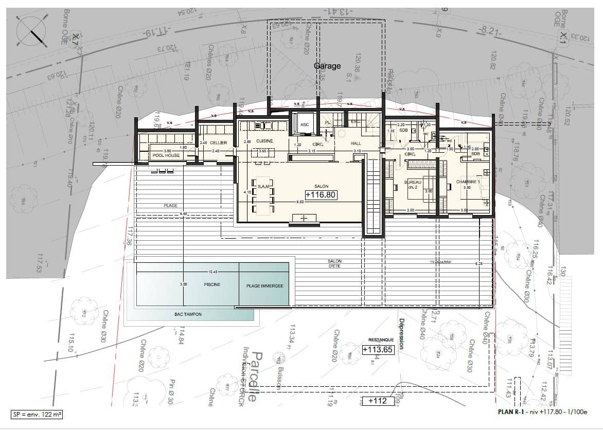
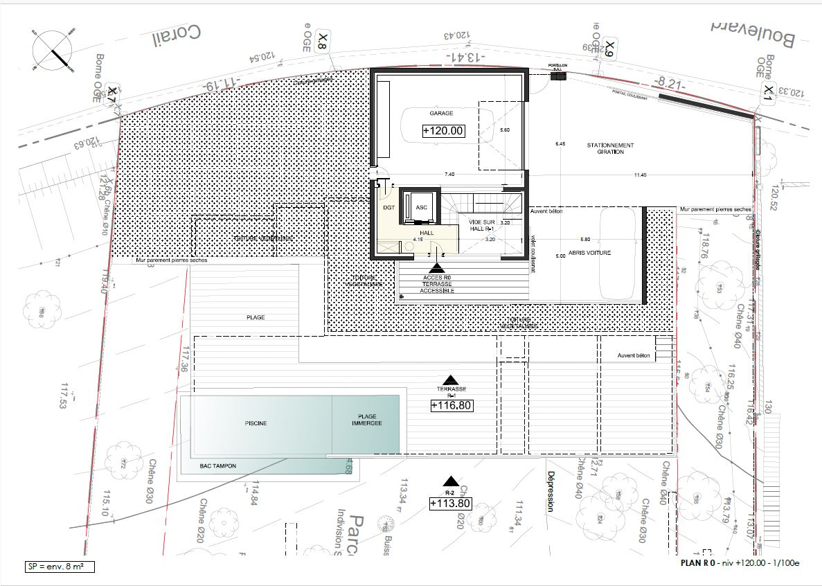
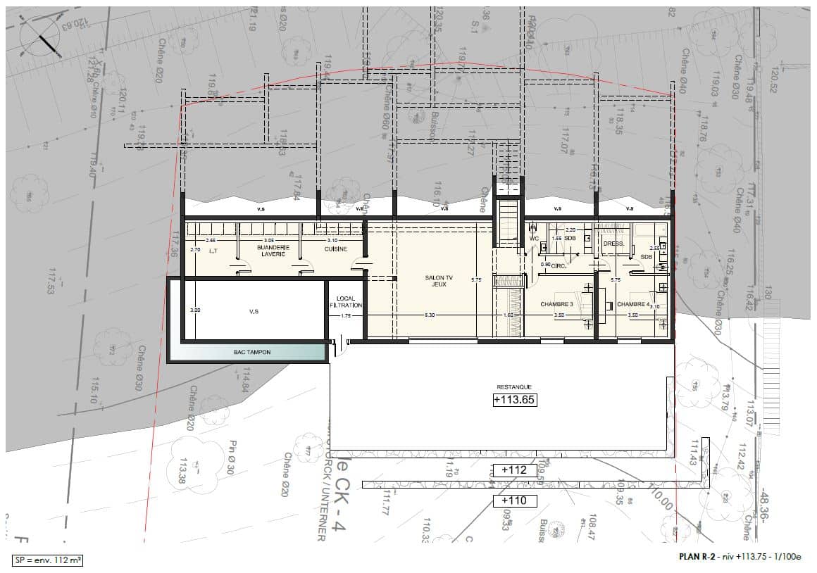
Ce terrain est vendu avec un permis de construire accordé et purgé de tout recours, permettant la réalisation d’une villa contemporaine avec piscine.
Le projet actuel prévoit :
- Une villa d’environ 248 m² de surface de plancher
- Un projet global d’environ 343 m² comprenant habitation, piscine, terrasses et aménagements extérieurs
- Une architecture moderne parfaitement intégrée à la pente naturelle du terrain
Un véritable avantage permettant de gagner du temps et sécuriser votre projet de construction.
📐 Caractéristiques du terrain
- Surface : 2 070 m²
- Localisation : La Londe-les-Maures – Valcros
- Environnement calme et résidentiel
- Terrain en pente offrant un fort potentiel architectural
- Étude de sol G1 réalisée
- Bornage et topographie effectués
- Possibilité de déposer un permis de construire modificatif afin d’adapter le projet selon vos besoins.
La configuration du terrain permet la réalisation d’un projet haut de gamme avec une excellente intégration paysagère .
⚖️ Modalités de vente – Vente interactive
Ce bien est proposé dans le cadre d’un dispositif de vente interactive.
Le prix affiché correspond à un prix de première offre possible, honoraires de négociation inclus. Les acquéreurs intéressés peuvent déposer leur offre en ligne après visite du bien.
Toutes les offres seront transmises au vendeur, lequel restera libre dans la sélection de l’offre à laquelle il entend donner suite.
La vente interactive ne constitue pas une vente aux enchères. Le vendeur conserve la liberté d’accepter ou de refuser toute offre reçue, y compris la plus élevée.
La participation à la vente interactive n’entraîne aucun frais supplémentaire pour les acquéreurs et la transaction se poursuivra ensuite selon le processus classique d’une vente immobilière avec la signature d’une promesse de vente chez le notaire.
✨ Ce bien est présenté par GFP Immobilier, spécialiste de l’immobilier à Bormes-les-Mimosas.
📞 Contact
Pour plus d’informations, dossier complet ou organisation d’une visite :
GFP Immobilier – Frédéric Grazzini
📍 Bormes-les-Mimosas
📞 04 94 24 56 08 (Standard 24/7)
Informations et caractéristiques
Terrain
- Surface terrain 2070 m²
- Exposition du terrain Est
- Piscinable
Détails du prix
Prix du bien
- 280 000 €
Prix hors frais notariés, d’enregistrement et de publicité foncière.
Prix hors honoraires d'agence
- 270 000 €
Honoraires TTC à la charge de l'acquéreur
- 10 000 €
Vous avez un bien à vendre ?
Faites-le estimer gratuitement par nos experts.
✔ Évaluation précise sous 48h après visite ;
✔ +25 ans d’expérience locale ;
✔ Accompagnement humain & personnalisé.
Géorisques
Les informations sur les risques auxquels ce bien est exposé sont disponibles sur le site Géorisques : www.georisques.gouv.fr
Frédéric GRAZZINI, Expert Immobilier membre de la Chambre des Experts Immobiliers de France, Fondateur et Gérant de GFP Immobilier, exerce en tant qu’agent immobilier depuis 1999.
Il met son expérience et son exigence professionnelle à votre service pour concrétiser votre projet immobilier dans les meilleures conditions.
Annonces similaires
- EXCLUSIVITE - VENTE INTERACTIVE
Terrain à bâtir Domaine de Valcros à La Londe-Les-Maures
- La Londe-les-Maures
- 2070m²
- 280 000 €
Terrain Constructible au Rayol-Canadel
- Rayol-Canadel-sur-Mer
- 2240m²
- 2 500 000 € – 3 000 000 €
- VENTE INTERACTIVE
Terrain constructible et viabilisé à Bormes-les-Mimosas de 404 m²
- Bormes-les-Mimosas
- 404m²
- 280 000 €
- VENTE INTERACTIVE
Terrain constructible viabilisé de 765 m² à vendre à Bormes-les-Mimosas (Var)
- Bormes-les-Mimosas
- 765m²
- 590 000 €
- TERRAIN AGRICOLE
LORGUES – Terrain Agricole – 4 770 m²
- Lorgues
- 4770m²
- 35 000 €
- PIN DE BORMES - PROCHE COMMODITES
Terrain constructible à Bormes-les-Mimosas – 415 m²
- Bormes-les-Mimosas
- 415m²
- 370 000 €